356 Lambing Hill Road, Goolma, NSW
19 Photos
Sold
19 Photos

+15
Connected but not crowded
Property ID: 229156
This 300 ac property is situated in its own valley, with views to Coonabarabran. Currently divided into 10 paddocks there is approx 100ac of mixed box forest crossed with access roads and 4WD tracks, which is managed for biodiversity. 6 dams and a tank and trough system ensure water to all paddocks, including the house and gardens. A new set of Red River Cattle yards with vet crush and Thunderbird scales, facilitate the smooth handling of the 40-50 females, their progeny and bulls. Boundary fencing for sheep, with internal cattle fencing in fair condition. The soil is mainly red basalt loam, with some quartz reefs and slate outcrops.
A neighbor agreement is in place for the adjacent wind farm development by Squadron Energy, and provides an annual income.
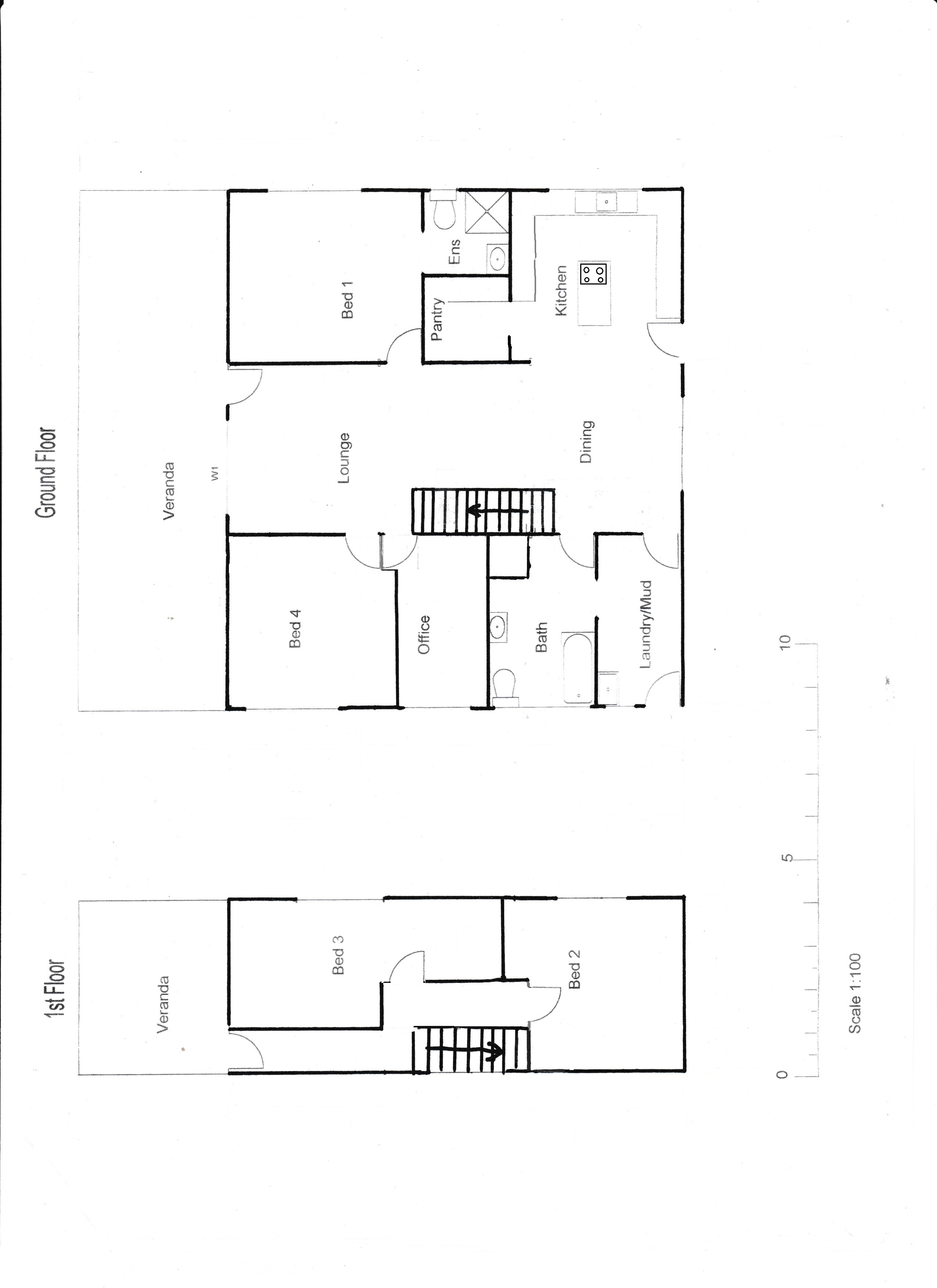
The 2 storey fully insulated American Barn style house has 4 bedrooms and an office, and is partly unfinished. The open plan kitchen/dining/lounge area is heated by a slow combustion wood stove and cooled with an air conditioner. The kitchen features a walk-in pantry and gas cooktop and oven. Satellite internet via Skymuster is connected to the office. Efficiency and sustainability are highlighted with a 3kVa solar grid connected system, gas instant hot water and waterless composting toilets.
House water is supplied from 2 rainwater tanks (50,000 l). There are also 2 tanks (20,000 l) attached to the sheds in the house paddock which can be pumped to the house. The 4 bay machinery shed has one lockable enclosed area. The workshop is 9m x 6m, currently fitted out for metal work. A garden tool shed is attached to the house, and a glasshouse is currently used for propagation.
The house paddock is landscaped into several ornamental and native gardens. Vegetable beds, a home orchard of citrus, stone fruit and almond trees add to the self sufficiency of this property. A fenced dog/chicken yard is situated within the orchard area. The property has a history of minimal chemical use.
A building inspection report completed by Resicert is available on request.
A neighbor agreement is in place for the adjacent wind farm development by Squadron Energy, and provides an annual income.
The 2 storey fully insulated American Barn style house has 4 bedrooms and an office, and is partly unfinished. The open plan kitchen/dining/lounge area is heated by a slow combustion wood stove and cooled with an air conditioner. The kitchen features a walk-in pantry and gas cooktop and oven. Satellite internet via Skymuster is connected to the office. Efficiency and sustainability are highlighted with a 3kVa solar grid connected system, gas instant hot water and waterless composting toilets.
House water is supplied from 2 rainwater tanks (50,000 l). There are also 2 tanks (20,000 l) attached to the sheds in the house paddock which can be pumped to the house. The 4 bay machinery shed has one lockable enclosed area. The workshop is 9m x 6m, currently fitted out for metal work. A garden tool shed is attached to the house, and a glasshouse is currently used for propagation.
The house paddock is landscaped into several ornamental and native gardens. Vegetable beds, a home orchard of citrus, stone fruit and almond trees add to the self sufficiency of this property. A fenced dog/chicken yard is situated within the orchard area. The property has a history of minimal chemical use.
A building inspection report completed by Resicert is available on request.
Features
Outdoor features
Balcony
Fully fenced
Shed
Indoor features
Balcony
Ensuite
Study
Broadband
Heating
Hot water service
Climate control & energy
Solar panels
Water tank
For real estate agents
Please note that you are in breach of Privacy Laws and the Terms and Conditions of Usage of our site, if you contact a buymyplace Vendor with the intention to solicit business i.e. You cannot contact any of our advertisers other than with the intention to purchase their property. If you contact an advertiser with any other purposes, you are also in breach of The SPAM and Privacy Act where you are "Soliciting business from online information produced for another intended purpose". If you believe you have a buyer for our vendor, we kindly request that you direct your buyer to the buymyplace.com.au website or refer them through buymyplace.com.au by calling 1300 003 726. Please note, our vendors are aware that they do not need to, nor should they, sign any real estate agent contracts in the promise that they will be introduced to a buyer. (Terms & Conditions).



