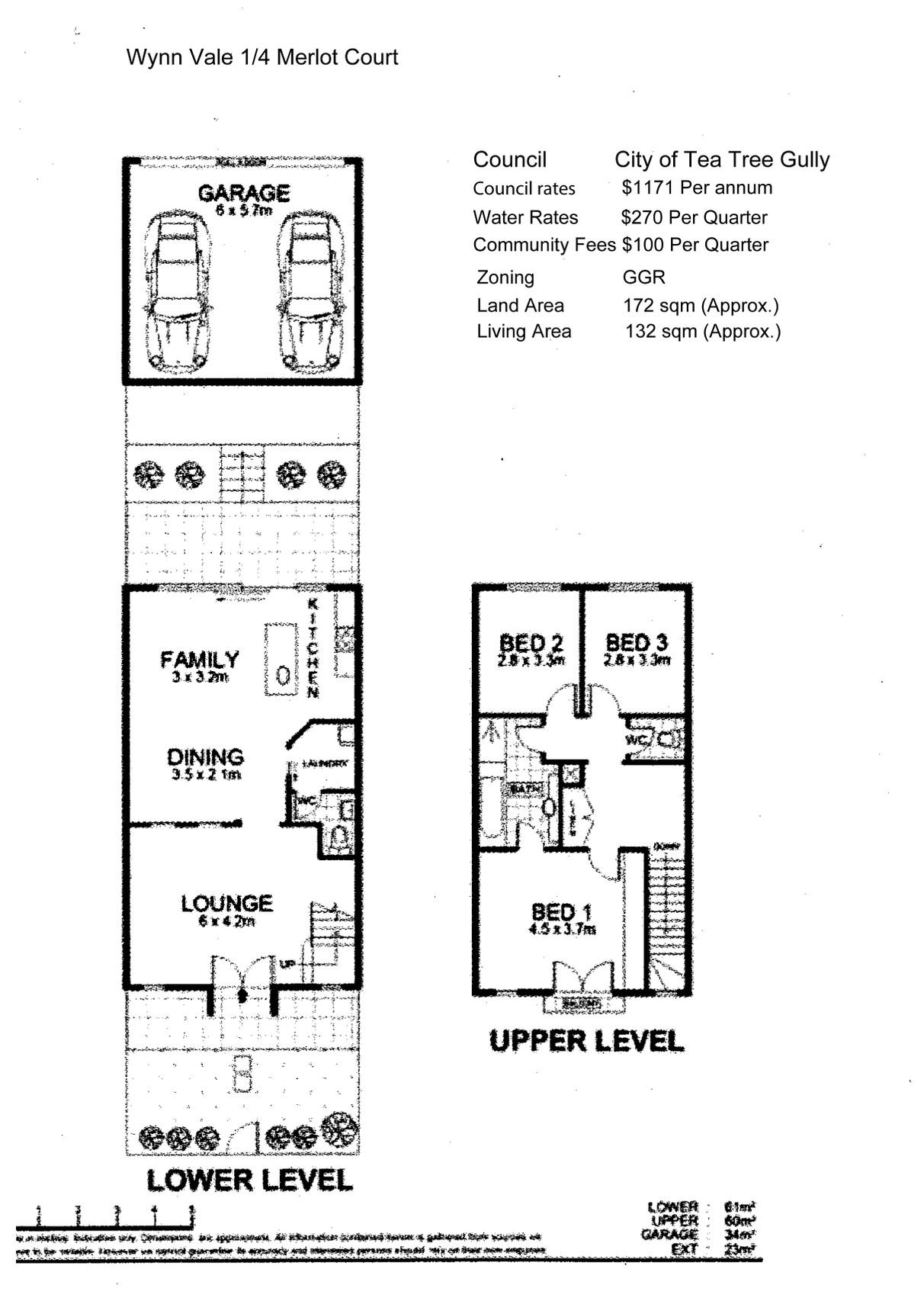
Unit 1, 4 Merlot Court, Wynn Vale, SA
12 Photos
Sold

12 Photos

+8
Sold
$330,000
3
1
2
–
townhouse
Sold
$330,000
3
1
2
–
townhouse
Smart property purchase close to schools, shopping precinct and also that is low maintenance
Property ID: 214572
If you are looking for a smart property purchase close to schools, shopping precinct and also that is low maintenance? You can’t go past this gem situated in the popular, well maintained suburb of Wynn Vale.The property offers: 3 good sized bedrooms upstairs all with built in Robes, the main featuring lovely hill views from French doors, and ensuite access to two way bathroom. Large meals /family room and separate lounge ideal for formal entertaining. Gorgeous Kitchen with ample cupboards, dishwasher and central bench. Full laundry with 2nd WC downstairs
Ducted reverse cycle air conditioning,Double Garage with auto panel lift door, paved courtyard with Pergola.
Property Features:
Central cooling
Central heating
Dishwasher
Gas Hot Plates
Carpeted bedrooms
Tiled bathrooms
Shower - single
BIR's In all bedrooms
BIR's in master bedroom
Double garage
Automatic watering system
Ducted reverse cycle air conditioning,Double Garage with auto panel lift door, paved courtyard with Pergola.
Property Features:
Central cooling
Central heating
Dishwasher
Gas Hot Plates
Carpeted bedrooms
Tiled bathrooms
Shower - single
BIR's In all bedrooms
BIR's in master bedroom
Double garage
Automatic watering system
Features
Indoor features
Ensuite
Ensuite
Ensuite
For real estate agents
Please note that you are in breach of Privacy Laws and the Terms and Conditions of Usage of our site, if you contact a buymyplace Vendor with the intention to solicit business i.e. You cannot contact any of our advertisers other than with the intention to purchase their property. If you contact an advertiser with any other purposes, you are also in breach of The SPAM and Privacy Act where you are "Soliciting business from online information produced for another intended purpose". If you believe you have a buyer for our vendor, we kindly request that you direct your buyer to the buymyplace.com.au website or refer them through buymyplace.com.au by calling 1300 003 726. Please note, our vendors are aware that they do not need to, nor should they, sign any real estate agent contracts in the promise that they will be introduced to a buyer. (Terms & Conditions).










